PEREŁKA INWESTYCYJNA
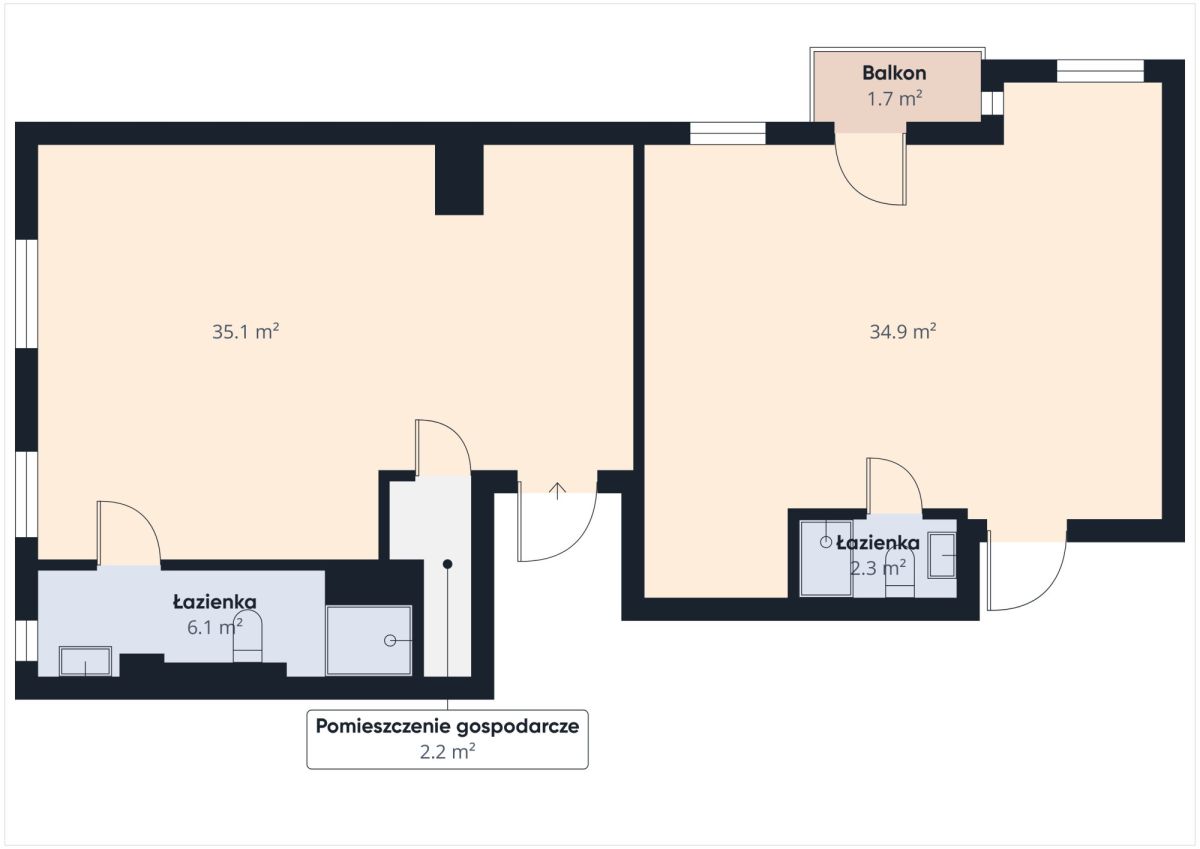
Na sprzedaż mieszkanie o łącznej powierzchni 79,20 m2, zlokalizowane na drugim piętrze w kamienicy, która została odrestaurowana, a elewacja wyremontowana. Nieruchomość składa się z dwóch kawalerek z osobnym wejściem z klatki schodowej, które były pierwotnie jednym mieszkaniem, a obecnie zostały podzielone zgodnie z dokumentacją budowlaną i odbiorami kominiarskimi i instalacyjnymi.
Pierwsza kawalerka obejmuje przestronny salon z aneksem kuchennym, łazienkę z prysznicem, szafkami i bidetem oraz oknem, a także pomieszczenie gospodarcze z piecem gazowym i zasobnikiem na wodę, który zasila oba mieszkania. Druga kawalerka to również funkcjonalny salon z aneksem kuchennym, oddzielna łazienka z prysznicem i zabudowanymi półkami oraz balkon, który zapewnia dodatkową przestrzeń na świeże powietrze. Obydwie kawalerki mają odrębne wejścia z klatki schodowej i mają osobne podliczniki prądu, co czyni je idealnym rozwiązaniem dla inwestora lub do własnego wykorzystania.
W mieszkaniach zastosowano ogrzewanie gazowe z dwufunkcyjnym piecem i zasobnikiem na wodę, a kaloryfery wyprodukowane z aluminium są sterowane z aplikacji, co zapewnia wygodę eksploatacyjną. Wszystkie instalacje oraz okna zostały wymienione, a w pomieszczeniach położono cegłę dekoracyjną, nadając charakteru i wysokiej jakości wykończenie. Do dyspozycji przyszłego właściciela pozostaje również światłowód, który umożliwia szybki dostęp do internetu. Łazienki są w pełni wyremontowane i wyposażone w armaturę oraz meble na wymiar, a aneksy kuchenne są przygotowane pod montaż szafek i sprzętów.
Nieruchomości znajdują się na jednej księdze wieczystej która nie jest obciążona żadnymi hipotekami, co gwarantuje bezproblemowy zakup. Czynsz administracyjny wynosi około 450 zł miesięcznie i obejmuje koszty wspólnoty z funduszem remontowym. Kamienica z 1908 roku jest pod opieką konserwatora, co gwarantuje stabilność inwestycji, a czysta i ładna klatka schodowa dodaje prestiżu całej nieruchomości. Czysta Księga Wieczysta i brak obciążeń czynią tę ofertę wyjątkowo atrakcyjną dla kupującego.
Mieszkanie idealnie nadaje się pod inwestycję lub do komfortowego mieszkania z możliwością prowadzenia dwóch odrębnych najemców, a elastyczne rozkłady i nowoczesne udogodnienia zapewniają wygodę na co dzień.
Dwupak kawalerek - Centrum Wrzeszcza
lokalizacja: Gdańsk, Jana Dekerta
1 399 000,00 PLN
17 664,14 PLN
Dane szczegółowe
- Typ transakcji: sprzedaż
- Typ nieruchomości: Mieszkanie
- Lokalizacja: Gdańsk Wrzeszcz, Jana Dekerta
- Powierzchnia:79,20 m2
- Liczba pokoi: 2
- Rok budowy: 1908
- Piętro: 2 z 4
- Numer oferty: 563637
- Cena: 1 399 000,00 PLN
- Cena za m2: 17 664,14 PLN
Opis nieruchomości
Zapraszam do kontaktu w celu ustalenia dogodnego terminu prezentacji.
Film o nieruchomości
Wirtualny spacer po nieruchomości
Kontakt do opiekuna:
Biuro Nieruchomości HONESTA